Wohnanlage Hemmingen
GEBÄUDEKENNDATEN:
Wohnungsbau | Neubau
BGF: 3.400 m²
Baukosten: 3.9 Mio. EUR
Fertigstellung: 2019
Ort: Hemmingen | Region Hannover
AUFTRAGGEBER:
GBI RESTAURA Hemmingen GmbH & Co. KG
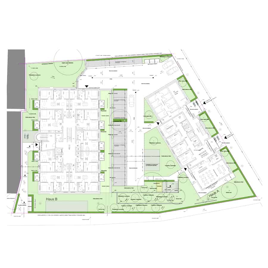
2017 hat die GBI Restaura GmbH in Hemmingen für die meravis Immobiliengruppe eine Wohnanlage mit 37 Wohneinheiten und einer Sozialstation bauen lassen.
Die neu errichtete Wohnanlage besteht aus 2 Gebäuden: einem 3-geschossigen straßenbegleitenden Riegel entlang der Göttinger Straße und einem zweiten Riegel im rückwärtigen Bereich des Grundstücks. Das rückwärtige Gebäude verfügt über 3 Vollgeschosse und ist vollunterkellert.
Das Gelände zwischen Göttinger Straße und Sollingstraße weist einen Höhenunterschied von knapp 2,50 m auf. Deshalb ist das Kellergeschoss gegen den Hang gebaut und taucht an der West- und Südseite komplett ins Erdreich ein. Der zwischen den Gebäuden liegende Hof wurde auf die Höhe der Göttinger Straße abgesenkt und beherbergt unter anderem einen Spiel- und Grünbereich für die gesamte Wohnanlage.
Wohnanlage Hemmingen
GEBÄUDEKENNDATEN:
Wohnungsbau | Neubau
BGF: 3.400 m²
Baukosten: 3.9 Mio. EUR
Fertigstellung: 2019
Ort: Hemmingen | Region Hannover
AUFTRAGGEBER:
GBI RESTAURA Hemmingen GmbH & Co. KG
2017 hat die GBI Restaura GmbH in Hemmingen für die meravis Immobiliengruppe eine Wohnanlage mit 37 Wohneinheiten und einer Sozialstation bauen lassen.
Die neu errichtete Wohnanlage besteht aus 2 Gebäuden: einem 3-geschossigen straßenbegleitenden Riegel entlang der Göttinger Straße und einem zweiten Riegel im rückwärtigen Bereich des Grundstücks. Das rückwärtige Gebäude verfügt über 3 Vollgeschosse und ist vollunterkellert.
Das Gelände zwischen Göttinger Straße und Sollingstraße weist einen Höhenunterschied von knapp 2,50 m auf. Deshalb ist das Kellergeschoss gegen den Hang gebaut und taucht an der West- und Südseite komplett ins Erdreich ein. Der zwischen den Gebäuden liegende Hof wurde auf die Höhe der Göttinger Straße abgesenkt und beherbergt unter anderem einen Spiel- und Grünbereich für die gesamte Wohnanlage.







