Wilhelm-Busch-Schule | Mensa
GEBÄUDEKENNDATEN:
Schulbau | Denkmalrechtliche Sanierung Schule | Neubau Mensa
BGF: 650 m²
Baukosten:2,5 Mio. EUR
Fertigstellung: 2016
Ort: Hannover | Ricklingen
AUFTRAGGEBER:
Landeshauptstadt Hannover, Fachbereich Gebäudemanagement
Das Schulgrundstück liegt am Rande des Stadtteils Ricklingen in Hannover an der Hauptverkehrstraße „Hamelner Chaussee“.
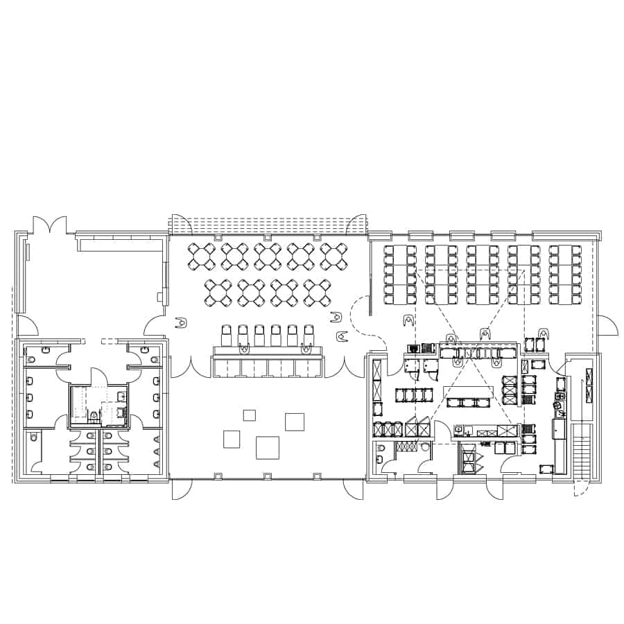
In Ergänzung zur Aula schließt die neue Mensa im Norden an den Klassentrakt II an und bildet eine bauliche Begrenzung für den Pausenhof zur Munzeler Str. An zwei Speisesäle mit 60 und 48 Sitzplätzen grenzt ein großzügiger Mehrzweck- und Freizeitbereich an.
Bodentiefe Fenster ermöglichen optimale Tageslichtnutzung und einen Blick auf den neu gestalteten Pausenhof. Die Fassadengestaltung und Materialwahl leiten sich aus dem Bestandsgebäude ab und bilden ein sinnvolles Pendant. Freundliche Farben und praktische Möbel bieten einen perfekten Aufenthaltsbereich für die Schüler der Wilhelm-Busch-Mensa.
Die technischen Anlagen wurden auf der Dachfläche angeordnet. Dieser Heizungs- und Technikraum ist über eine Außentreppe erreichbar.
Wilhelm-Busch-Schule | Mensa
GEBÄUDEKENNDATEN:
Schulbau | Denkmalrechtliche Sanierung Schule | Neubau Mensa
BGF: 650 m²
Baukosten:2,5 Mio. EUR
Fertigstellung: 2016
Ort: Hannover | Ricklingen
AUFTRAGGEBER:
Landeshauptstadt Hannover, Fachbereich Gebäudemanagement
Das Schulgrundstück liegt am Rande des Stadtteils Ricklingen in Hannover an der Hauptverkehrstraße „Hamelner Chaussee“.
In Ergänzung zur Aula schließt die neue Mensa im Norden an den Klassentrakt II an und bildet eine bauliche Begrenzung für den Pausenhof zur Munzeler Str. An zwei Speisesäle mit 60 und 48 Sitzplätzen grenzt ein großzügiger Mehrzweck- und Freizeitbereich an.
Bodentiefe Fenster ermöglichen optimale Tageslichtnutzung und einen Blick auf den neu gestalteten Pausenhof. Die Fassadengestaltung und Materialwahl leiten sich aus dem Bestandsgebäude ab und bilden ein sinnvolles Pendant. Freundliche Farben und praktische Möbel bieten einen perfekten Aufenthaltsbereich für die Schüler der Wilhelm-Busch-Mensa.
Die technischen Anlagen wurden auf der Dachfläche angeordnet. Dieser Heizungs- und Technikraum ist über eine Außentreppe erreichbar.








