Doktorsklappe Oldenburg
Ideenwettbewerb, Anerkennung
GEBÄUDEKENNDATEN:
Neubau einer Wohnanlage
BGF: 16.300 m²
Ort: Oldenburg
AUFTRAGGEBER:
Baum Unternehmensgruppe GmbH
2015 plante die BAUM Unternehmensgruppe die Neugestaltung des Standortes Kanalstraße 23, der sogenannten „Doktorsklappe“.
Hier am Einlauf des Küstenkanals in die Hunte erlaubt der Standort auf der als „Doktorsklappe” bekannten Halbinsel den Blick aufs Wasser von gleich mehreren Seiten. Den Namen „Doktorsklappe“ hat diese Landzunge, weil dort zu Zeiten Graf Anton Günthers ein Doktor und Hofbeamter diese Fläche als Weidewiese gepachtet hatte und einen Graben mit einer Klappe gegen das einströmende Hochwasser sicherte.
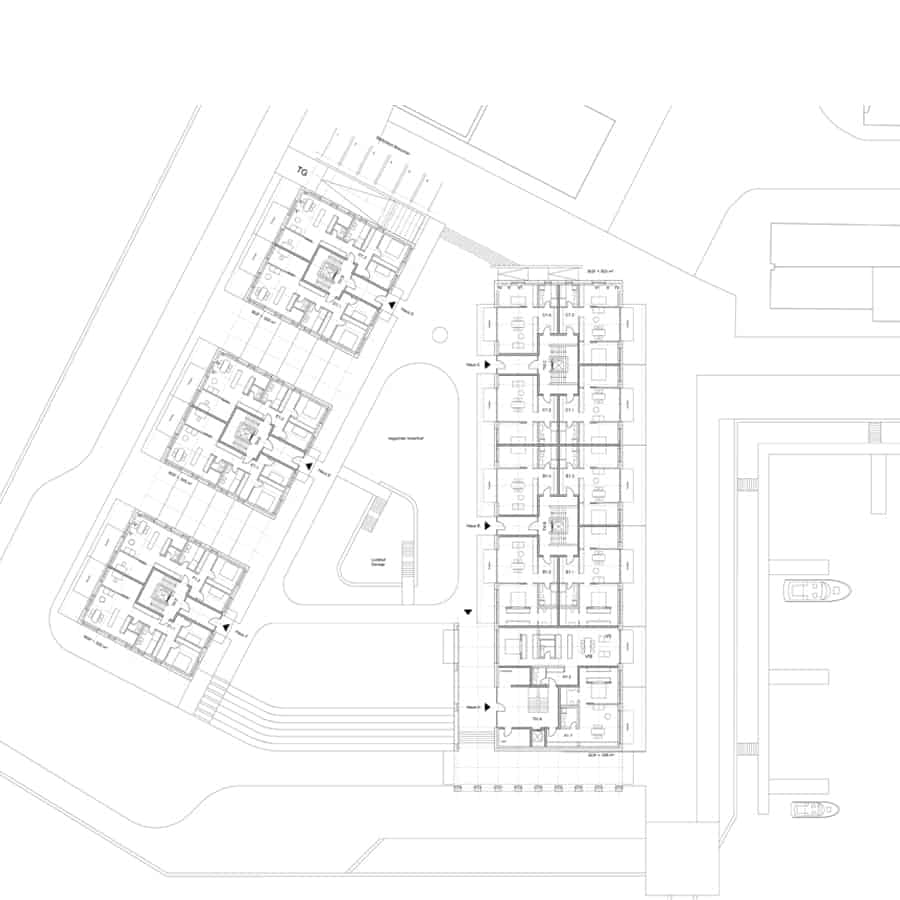
Individuelles Wohnen in Hafennähe als Kerngedanke prägt den Entwurf der geplanten Wohnanlage. Die Gebäude orientieren sich an den Wasserkanten von Küstenkanal, Hunte und Hafenanlage auf der Halbinsel „Doktorsklappe“.
Der Entwurf vermittelt zwischen den angrenzenden Stadtvillen an der Kanalstraße und der riegelartigen Wohnbebauung an der Hafenanlage; eine „Holländerbrücke“ schafft die Verbindung zur gegenüberliegenden Hafenpromenade. Alle Gebäude reihen sich an der West- und Ostkante des Grundstücks und ermöglichen so einen freien Blick auf den Küstenkanal, die Hunte und die Hafenanlage.
Sechs Gebäude bieten Platz für 95 Wohneinheiten. Freiräume als nachbarschaftliche Aufenthaltsbereiche und ein umlaufender Fuß- und Radweg gliedern das Gelände.
Doktorsklappe Oldenburg
Ideenwettbewerb, Anerkennung
GEBÄUDEKENNDATEN:
Neubau einer Wohnanlage
BGF: 16.300 m²
Ort: Oldenburg
AUFTRAGGEBER:
Baum Unternehmensgruppe GmbH
2015 plante die BAUM Unternehmensgruppe die Neugestaltung des Standortes Kanalstraße 23, der sogenannten „Doktorsklappe“.
Hier am Einlauf des Küstenkanals in die Hunte erlaubt der Standort auf der als „Doktorsklappe” bekannten Halbinsel den Blick aufs Wasser von gleich mehreren Seiten. Den Namen „Doktorsklappe“ hat diese Landzunge, weil dort zu Zeiten Graf Anton Günthers ein Doktor und Hofbeamter diese Fläche als Weidewiese gepachtet hatte und einen Graben mit einer Klappe gegen das einströmende Hochwasser sicherte.
Individuelles Wohnen in Hafennähe als Kerngedanke prägt den Entwurf der geplanten Wohnanlage. Die Gebäude orientieren sich an den Wasserkanten von Küstenkanal, Hunte und Hafenanlage auf der Halbinsel „Doktorsklappe“.
Der Entwurf vermittelt zwischen den angrenzenden Stadtvillen an der Kanalstraße und der riegelartigen Wohnbebauung an der Hafenanlage; eine „Holländerbrücke“ schafft die Verbindung zur gegenüberliegenden Hafenpromenade. Alle Gebäude reihen sich an der West- und Ostkante des Grundstücks und ermöglichen so einen freien Blick auf den Küstenkanal, die Hunte und die Hafenanlage.
Sechs Gebäude bieten Platz für 95 Wohneinheiten. Freiräume als nachbarschaftliche Aufenthaltsbereiche und ein umlaufender Fuß- und Radweg gliedern das Gelände.






