Collaboration Factory
GEBÄUDEKENNDATEN:
Ausbau von denkmalgschütztem Dachgeschoss zur Bürofläche
BGF: 300 m²
Fertigstellung: 2019
Ort: Hannover | List
AUFTRAGGEBER:
Lianeo Real Estate GmbH
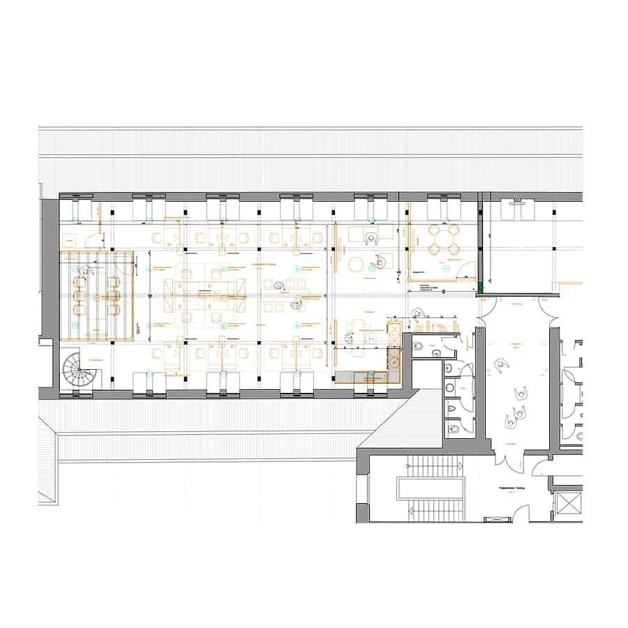
Das ehemalige Werksgelände der Firma Pelikan in Hannover-List gilt als eines der bedeutendsten Beispiele des Industriebaus um die Jahrhundertwende. In dem denkmalgeschützten Gebäude wurden 300qm des Dachgeschosses zu einer offenen Bürofläche ausgebaut.
Das Open Space Konzept vereint Einzelarbeitsplätze, Besprechungsräume und Teeküche in dem hellen, hohen Raum, wobei die freiliegende Dachkonstruktion den Bezug zur historischen Substanz des Objekts herstellt.
Collaboration Factory
GEBÄUDEKENNDATEN:
Ausbau von denkmalgschütztem Dachgeschoss zur Bürofläche
BGF: 300 m²
Fertigstellung: 2019
Ort: Hannover | List
AUFTRAGGEBER:
Lianeo Real Estate GmbH
Das ehemalige Werksgelände der Firma Pelikan in Hannover-List gilt als eines der bedeutendsten Beispiele des Industriebaus um die Jahrhundertwende. In dem denkmalgeschützten Gebäude wurden 300qm des Dachgeschosses zu einer offenen Bürofläche ausgebaut.
Das Open Space Konzept vereint Einzelarbeitsplätze, Besprechungsräume und Teeküche in dem hellen, hohen Raum, wobei die freiliegende Dachkonstruktion den Bezug zur historischen Substanz des Objekts herstellt.








